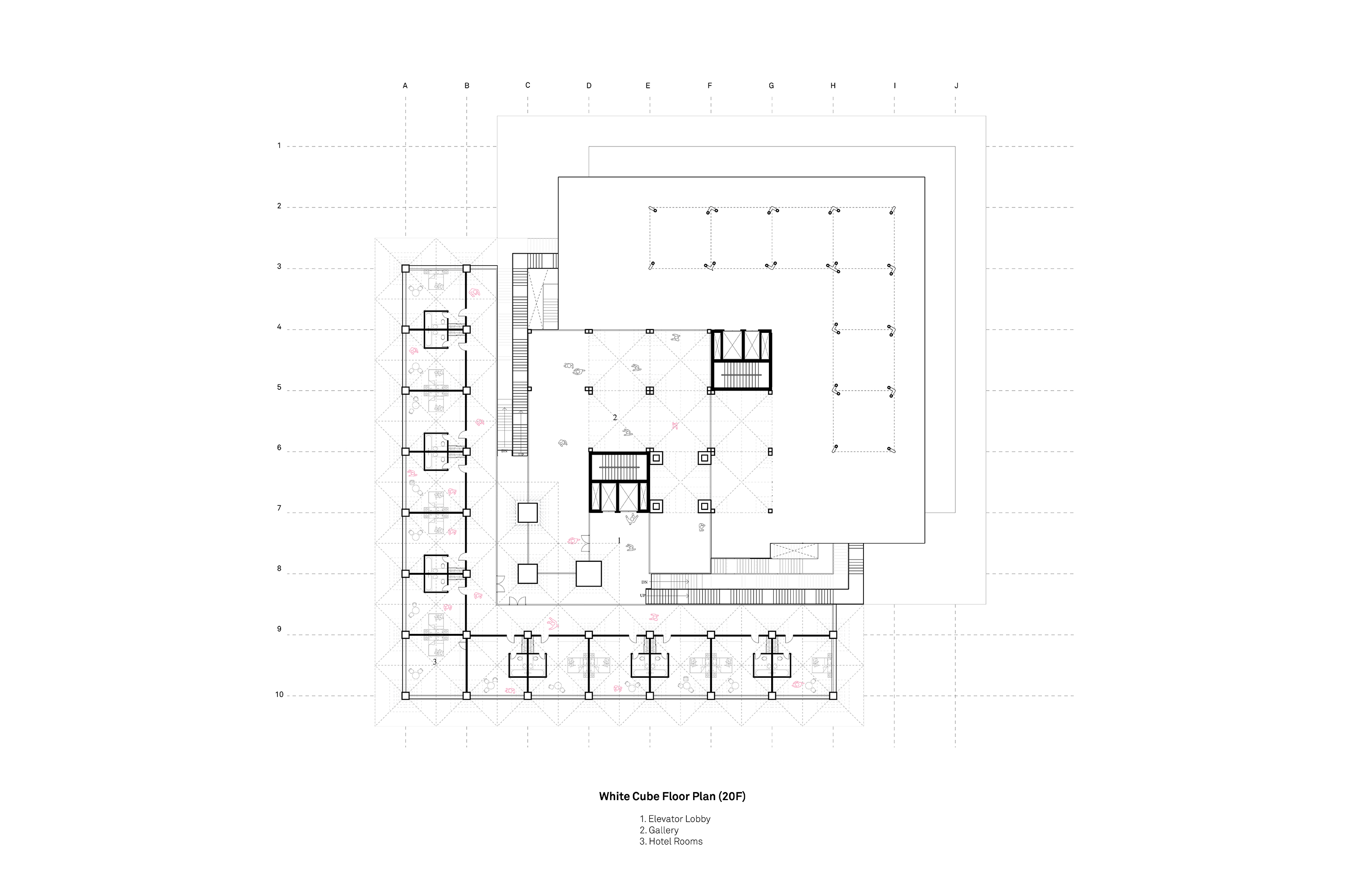
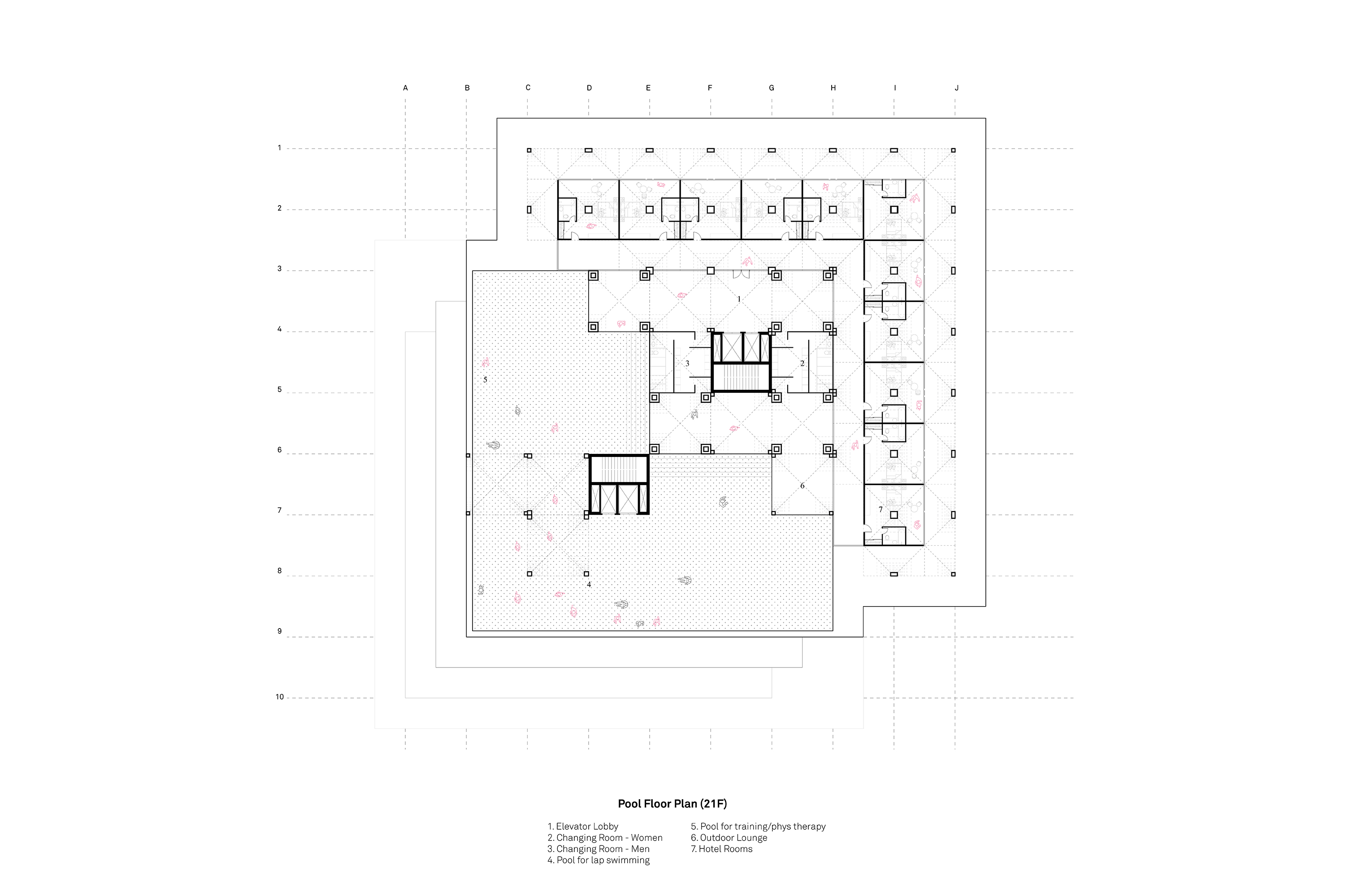
Gradient — Structure as Image
The project’s spaces and their relationship to one another are centered on the circulation, observation, and participation of the flaneur. At the same time, the building’s structural system is formed as a thermodynamic controller to the specific climatic conditions of the area and as a rainwater collector to address the fresh water shortage issues of Singapore. These two ideas have continually impressed upon one another to create the resulting architecture.

 
 
 
 
