︎
Index︎
Next︎
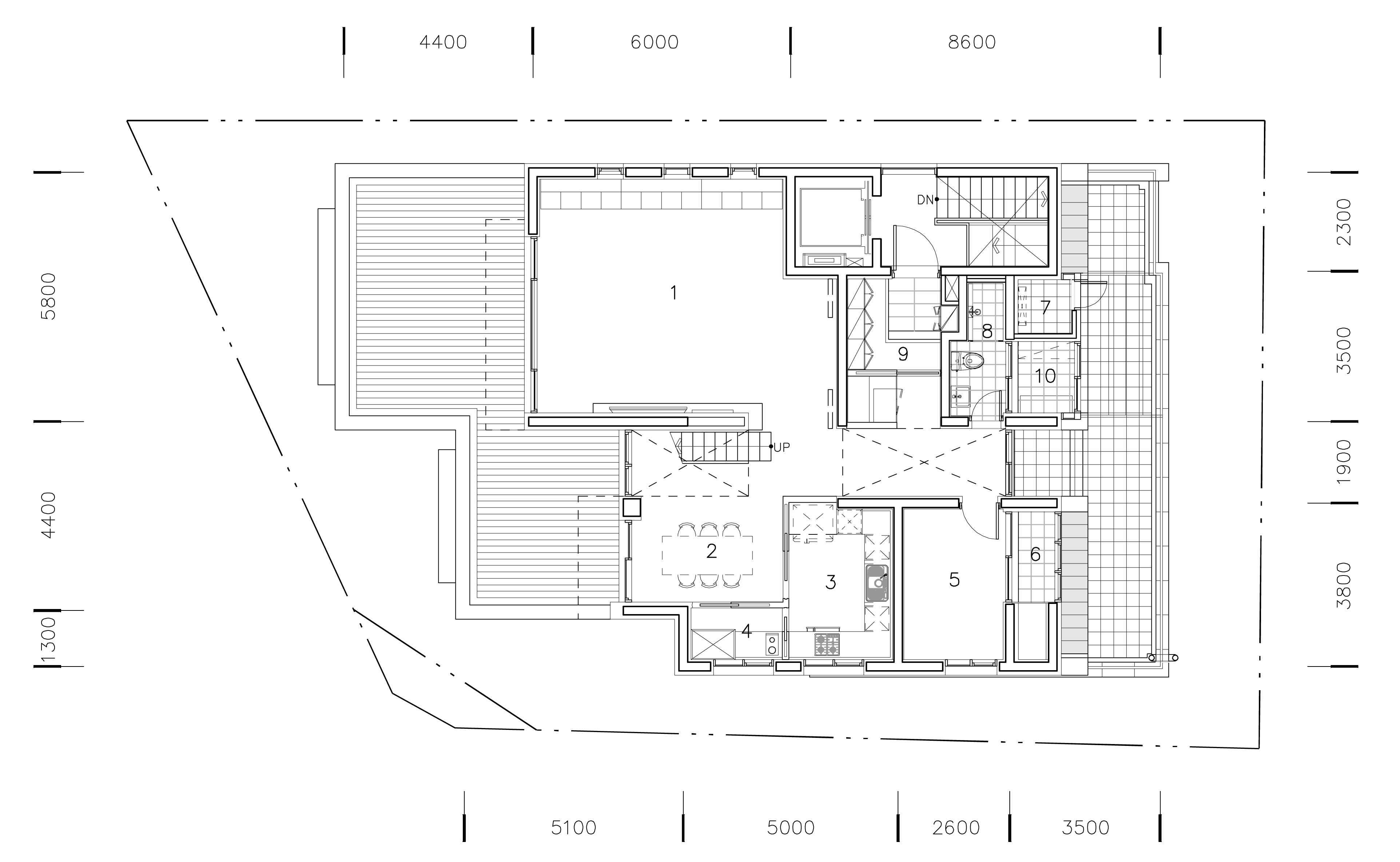
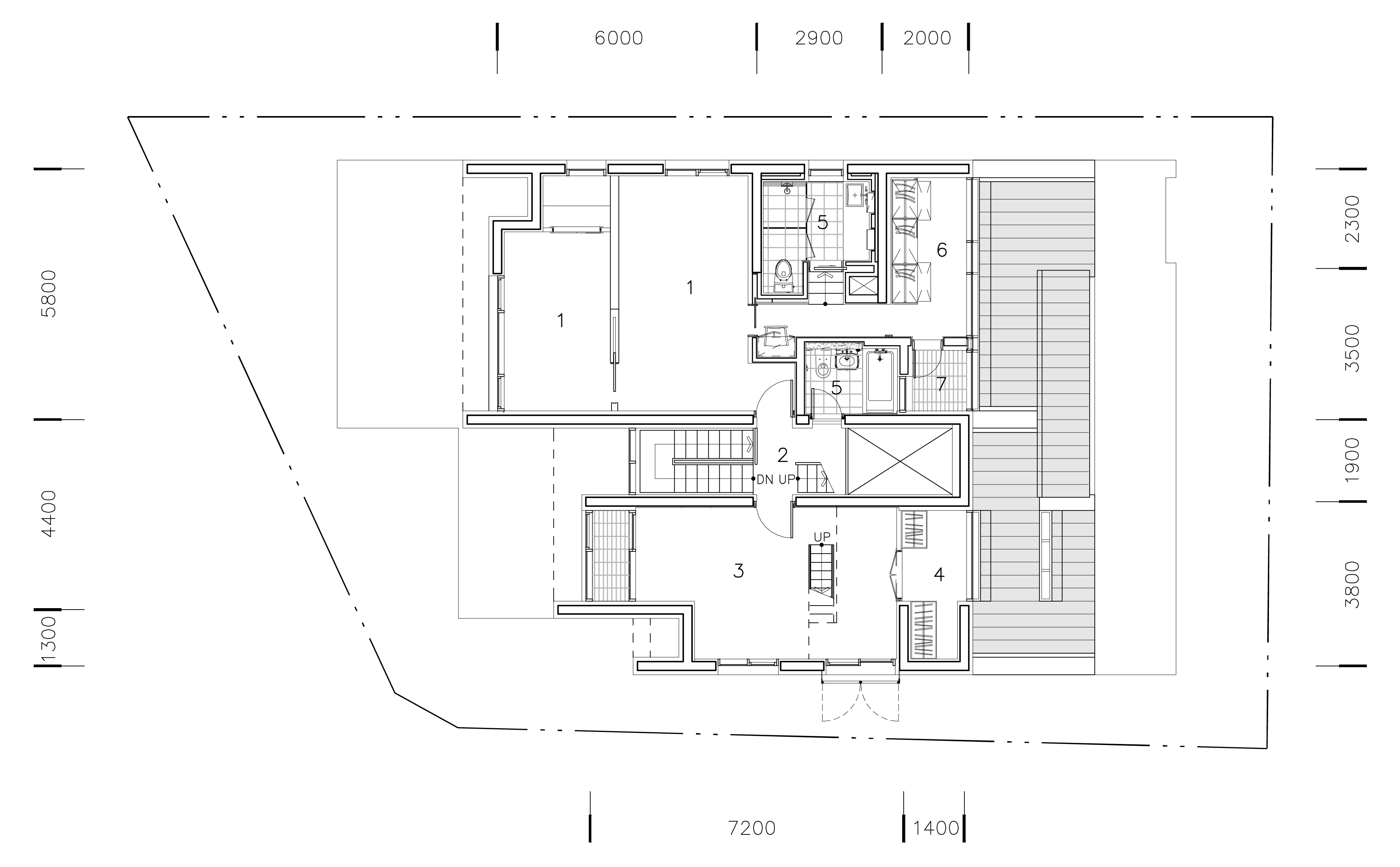
Pre- and Post-
Vertically Layered House
Date:
2011
Location:
Seocho District, Seoul, South Korea
Work at Haeahn
About
News
Contact
︎